ROLF NB EL 200 S / 2,4 kW nerezový elektrický ohřívač vody stojatý, svislý
Nerezový elektrický ohřívač vody.
Příkon el. topného tělesa 2,4 kW / 1 x 230 V
Provedení stojaté, svislé.
Ohřívač standardně dodáváme včetně tepelné izolace.
Ohřívače vody a zásobníky ROLF vyrábíme z vysoce kvalitní nerezové oceli AISI 316L, která splňuje požadavky vyhlášky č. 409/2005 Sb. a je certifikována pro trvalý styk s pitnou vodou.
Nadstandardní kvalita:
- Svařováno v ochranné atmosféře
- Vysoká odolnost nerezového materiálu vůči chemické, galvanické a důlkové korozi
- Masivní konstrukce nádoby odolávající tlakovým rázům a napětí
- Kvalitní tepelná izolace tvrzená PUR pěna (nesnímatelná)
- Snadná montáž a jednoduchá obsluha
- 10 let záruka na těsnost nádoby
- 100% český výrobek

| Kategorie: | Nerezové bojlery |
|---|---|
| Záruka: | 10 let |
| Druh ohřívače: | Zásobníkový |
| Typ ohřevu: | Elektrický |
| Umístění ohřívače: | Stojaté |
| Užitný objem: | 198 L |
| Elektrické napájení: | 1x230 V |
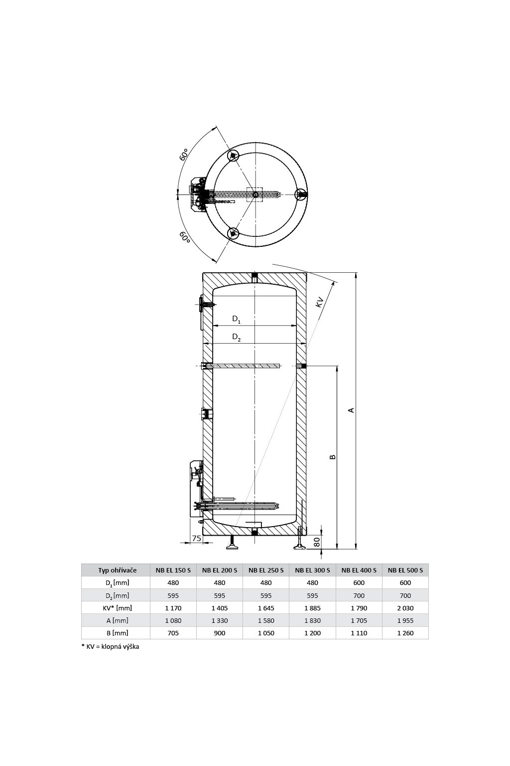
| Průměr: | 595 mm |
| Výška: | 1330 mm |
| Hmotnost: | 49 kg |
- Nerezový elektrický ohřívač vody
- Objemová řada 200 litrů
- Provedení ohřívače stojaté svislé - součástí stavitelné balanční nohy (3ks)
- Ohřívač je vyroben z vysoce legovaného nerezového materiálu AISI 316 L
- Elektrický ohřev zajišťuje nerezové topné těleso ponořené přímo do vody
- Jednoduché ovládání a regulace elektroohřevu
- Součásti elektroohřevu provozní a havarijní termostat
- Tepelná izolace ohřívače (tvrzená PUR pěna o síle 57 mm) zajišťuje minimální tepelné ztráty a nízké provozní náklady
- Povrch izolace tvoří šedé PVC opláštění a černé plastové kryty
- Moderní design a praktický vzhled ohřívače
- Vizuální kulatý teploměr s přehledným ciferníkem
- Všechny připojovací hrdla s vnitřním závitem
- Maximální dovolený tlak nádoby ohřívače 10 bar
- Maximální dovolená teplota ohřívače 90 °C
- Doporučená provozní teplota ohřívače 60 °C
- Záruční doba na těsnost nádoby 10 let
Buďte první, kdo napíše příspěvek k této položce.
Největší český výrobce nerezových ohřívačů a zásobníků teplé vody působící na českém i zahraničním trhu již třetí desetiletí. Rodinná strojírenská společnost sídlící v samotném srdci Beskyd. Vyrábí a dodává široký sortiment nerezových a ocelových výrobků pro ohřev a akumulaci teplé vody, minipivovary a tlakové nádoby. Hlavním výrobním programem jsou sériově vyráběné nerezové ohřívače vody, bojlery a zásobníky vody, se kterými se stali díky vysoké kvalitě zpracování jedničkou ve svém oboru.
